
32 library counter furniture design
-
furniture design
-
Southend-on-Sea, Essex
-
1985 - design & construction drawings
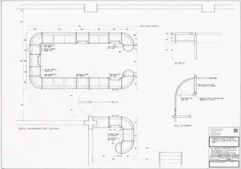
As part of the design team in the architect’s department in Essex County Council I was given the task of designing the new library counter and reception desk for Southend Central Library. The project was given me to the because of my specialist furniture design training. The building itself is a 1970s brutalist concrete structure, it’s now an art gallery. In the 1980s when I was involved in the project, the brief was to achieve a design that was welcoming for library visitors and comfortable and practical for staff. The design had to incorporate various specific pieces of equipment and had to have flexible pull out shelves and trollies that could be tidied under the counter at the end of the day. I chose curved forms, rounded edges and light-coloured joinery made from sycamore hardwood framing, laminated panels and surfaces. The juxtaposition between the smooth lines of the counter and the square, uncompromising architecture sat harmoniously together.








