
13 chalet of 258m², one of five new build chalets
-
258m² new build
-
Morillon, French Alps
-
2018 : design, planning application, technical drawings
-
construction is still in progress
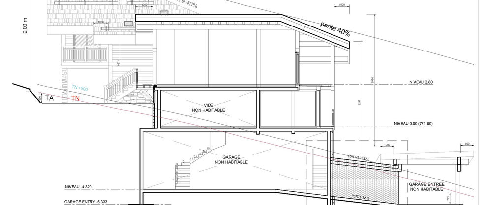
This chalet has four bedrooms with ensuite bathrooms, large open plan kitchen, dining and living area, ample storage areas and underground parking for four cars with inside turning space. This chalet is part of a five-chalet development explained in Project 18 and the design was based on the principles established during the design phase of the first chalet worked on for the five-chalet development (Project 24) where I devised a method for the mass and volume of the chalet which I named ‘sliding boxes’ – the principle being that box spaces could be stacked and stepped up the slope to create second or half levels, and split roof levels. The space underneath the habitable ‘sliding boxes’ created spacious garages for three or four cars plus turning space inside. This basic principle of levels and habitable spaces was used for all five buildings, although each design is unique. The main challenge for this chalet was that it was on one of the narrower plots and had a steep bank up from the road which made it difficult to design an easy vehicle access that complied with regulations. The final design incorporates a partially buried garage structure with a tunnel connecting the chalet to four underground parking spaces and creates large storage areas. *

































